Дизайн-проект,
после которого понятно,
как делать ремонт.
Точные чертежи, 3D-визуализация и прозрачная смета. Вы видите результат до начала стройки.
Пишите свою историю начисто
- План демонтажа и монтажа
- Разводка электрики и света
- Выводы водоснабжения
- Раскладка плитки
Ремонт — это дорого.
Ошибаться в проекте — еще дороже.
Многие начинают с красивых картинок, а потом сталкиваются с реальностью: смета растёт, строители задают вопросы, розетки не там, а часть решений приходится переделывать.
Формула понятного ремонта
Мы собираем проект так, чтобы он был полезен не только для красивой картинки, но и как рабочий инструмент для стройки.
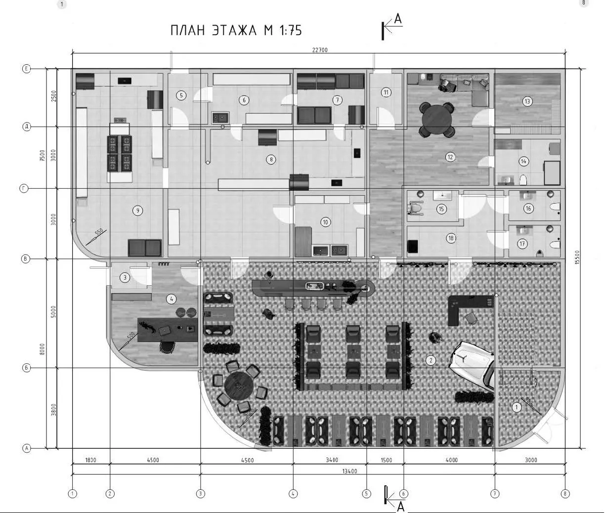
Точный план
Оцифровываем помещение, находим скрытые возможности и предлагаем законную планировку.
3D + Концепция
Показываем объемы, материалы и освещение. Вы понимаете, как будет выглядеть каждая комната.
Смета и чертежи
Считаем примерный бюджет реализации и готовим понятные схемы для строителей.
Что вы получаете на руки
Чем мы отличаемся
Почему качественный проект окупается
Раньше понимаете бюджет
Вы видите, какие решения делают ремонт дороже, а где можно выбрать более разумный вариант.
Без переделок
Планировка и ключевые решения проверяются и согласовываются до начала ремонта.
Понятно и наглядно
План, 3D и визуализация помогают увидеть будущий интерьер простым человеческим языком.
Строителям проще
Проект становится понятной инструкцией, а не набором абстрактных творческих идей.
Спокойные решения
До ремонта вы понимаете, что получите, что покупать и к каким затратам готовиться.
Наши последние работы
Ознакомьтесь с примерами реальных дизайн-проектов, которые мы разработали для наших клиентов.
Кафе Дайнер
Полный дизайн-проект интерьера
Кафе-музей железной дороги, г. Томск
Интерьерные решения с историческим контекстом
Тем, кто ценит свое время и бюджет
Выберите формат проекта
Смета — не после дизайна, а вместе с ним
Частая ошибка — сначала придумать красивый интерьер, а потом узнать, что он не подходит по бюджету. В Аркплан мы сразу смотрим на дизайн через будущий ремонт: какие работы нужны, какие материалы потребуются, какие решения могут увеличить стоимость.
Финансовый контроль
Визуальная ясность
Проект, который понятно выглядит до ремонта
Не каждый клиент умеет читать чертежи. Поэтому мы показываем интерьер в понятном виде: планировка, объёмы, мебель, материалы и визуализация. Вы видите будущую квартиру до начала работ и можете спокойно согласовать решения.
360° Туры вашей будущей квартиры
Мы также создаем 360-туры из нашей визуализации, чтобы заказчик мог полностью оценить дизайн-проект в полном погружении. Осмотрите каждый угол комнаты так, словно вы уже находитесь в ней!
Проект, с которым строителям проще работать
Когда проект сделан непонятно, строители начинают уточнять, додумывать или предлагать свои решения прямо на объекте. Это приводит к ошибкам, задержкам и лишним расходам. Аркплан готовит проект так, чтобы было понятно:
- что делать;
- где делать;
- какие материалы использовать;
- какие объёмы учитывать;
- какие решения уже согласованы.
Точность реализации
Ответы на частые вопросы
Можно ли заказать только планировку?
Да. Можно начать с планировки и сметы, чтобы понять потенциал помещения до полного дизайн-проекта.
Можно ли работать по старому плану БТИ?
Да. Мы можем оцифровать план и использовать его как основу для проекта.
Чем Аркплан отличается от обычной дизайн-студии?
Мы не только делаем красивый интерьер, но и связываем его с планировкой, 3D и сметой ремонта. Проект становится инструкцией.
Зачем нужна смета на этапе дизайна?
Чтобы заранее понимать, какие решения увеличивают стоимость ремонта, и не узнавать это уже на объекте.
Можно ли передать проект строителям?
Да. Проект готовится так, чтобы подрядчикам было проще понять задачу и считать работы.
Хотите понять, сколько будет стоить ваш проект?
Отправьте параметры квартиры или дома. Мы посмотрим площадь, задачу и подскажем, какой формат проекта подойдёт: планировка, полный дизайн-проект или проект под ремонт.
Написать в MAX
MAX